In den malerischen Rosenbergvillen erhebt sich die Villa an der Müller-Friedbergstrasse als ein beeindruckendes Zeugnis vergangener Architektur. Ihre Grösse und einzigartige Lage zeugen von ihrer historischen Bedeutung. Um ihre Einzigartigkeit zu bewahren, bedarf es einer präzisen Herangehensweise.
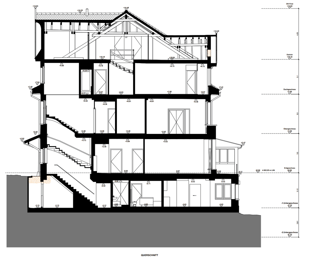
Laserscanning ist eine faszinierende Methode, die es ermöglicht, jedes Detail der Villa in höchster Präzision zu erfassen. Von den Fassaden bis zu den feinsten architektonischen Elementen - nichts entgeht dieser innovativen Technologie.
Darauf aufbauend haben wir 2D-Planungsgrundlagen gezeichnet, die eine detaillierte Darstellung des Gebäudes ermöglichen. Diese Pläne bilden die Basis für zukünftige Entwicklungen und Erhaltungsmassnahmen.
In den malerischen Rosenbergvillen erhebt sich die Villa an der Müller-Friedbergstrasse als ein beeindruckendes Zeugnis vergangener Architektur. Ihre Grösse und einzigartige Lage zeugen von ihrer historischen Bedeutung. Um ihre Einzigartigkeit zu bewahren, bedarf es einer präzisen Herangehensweise.