Services
Laser scanning inside & outside
2D floor plans, sections & views
Free 360 degree photo viewer
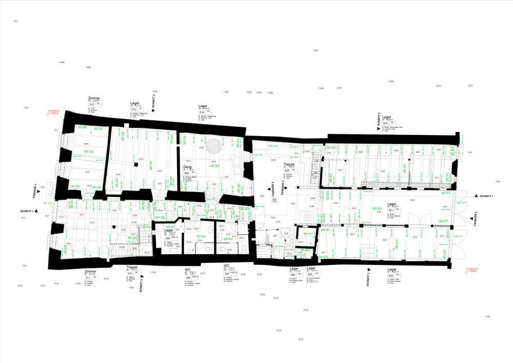
2D-CAD-Grundrisse erstellt aus hochauflösender Punktwolke nach 3D-Laserscanning.
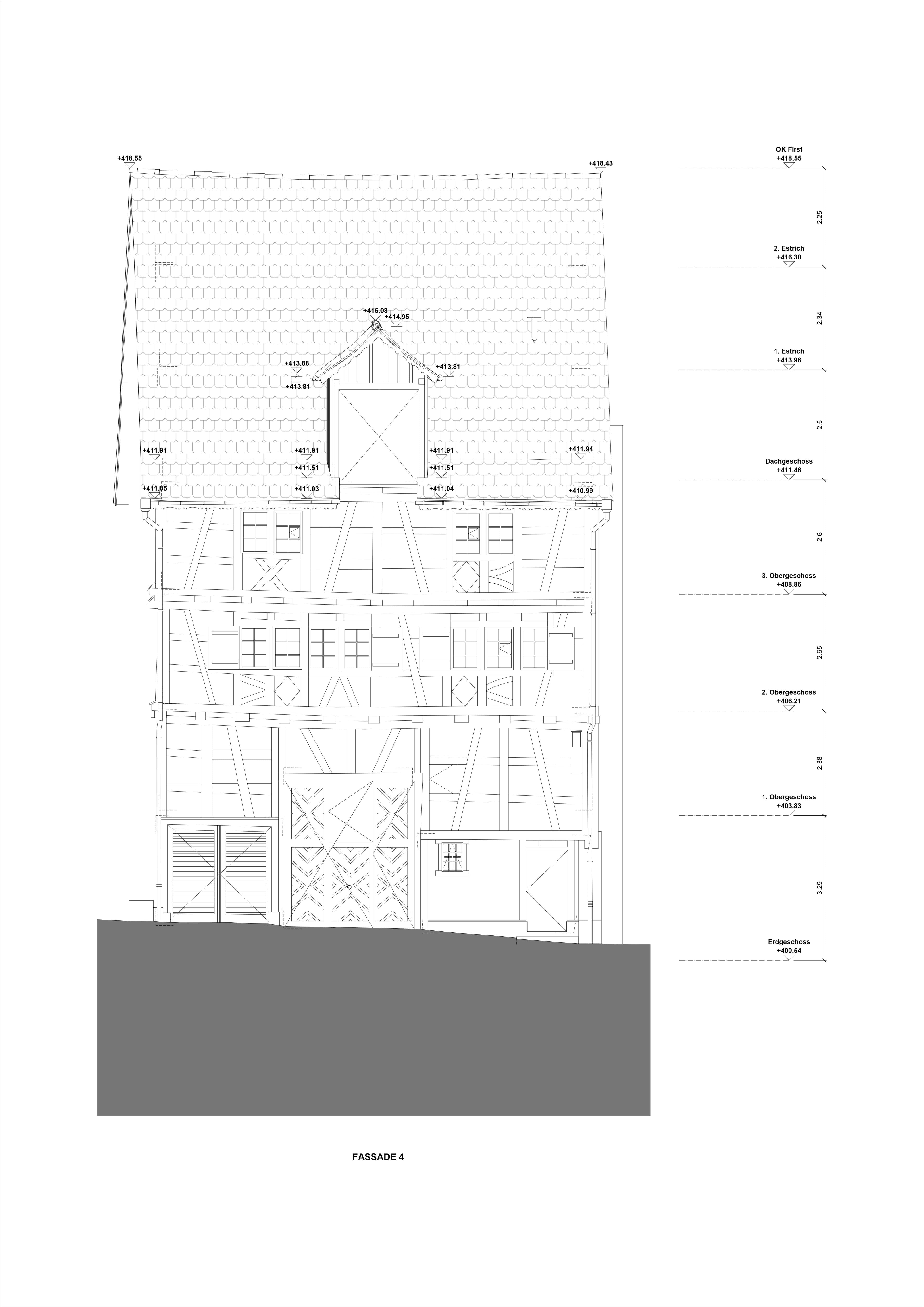
2D-Fassadenplan eines Bestandsgebäudes aus präziser Gebäudevermessung als Grundlage für Sanierungs- und Umbauplanung durch VDE
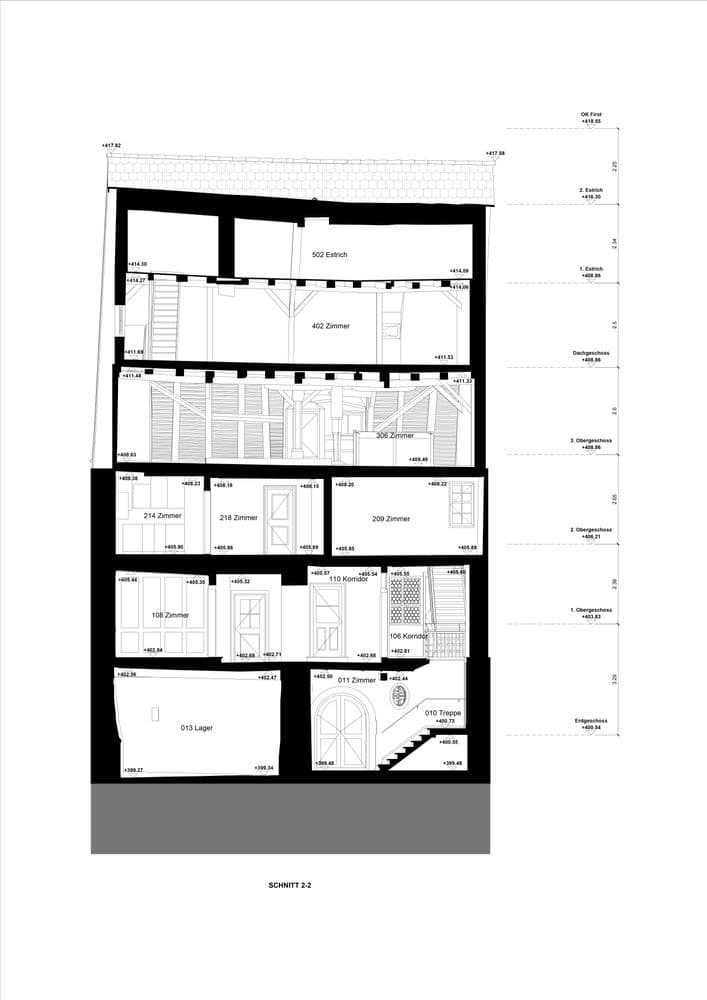
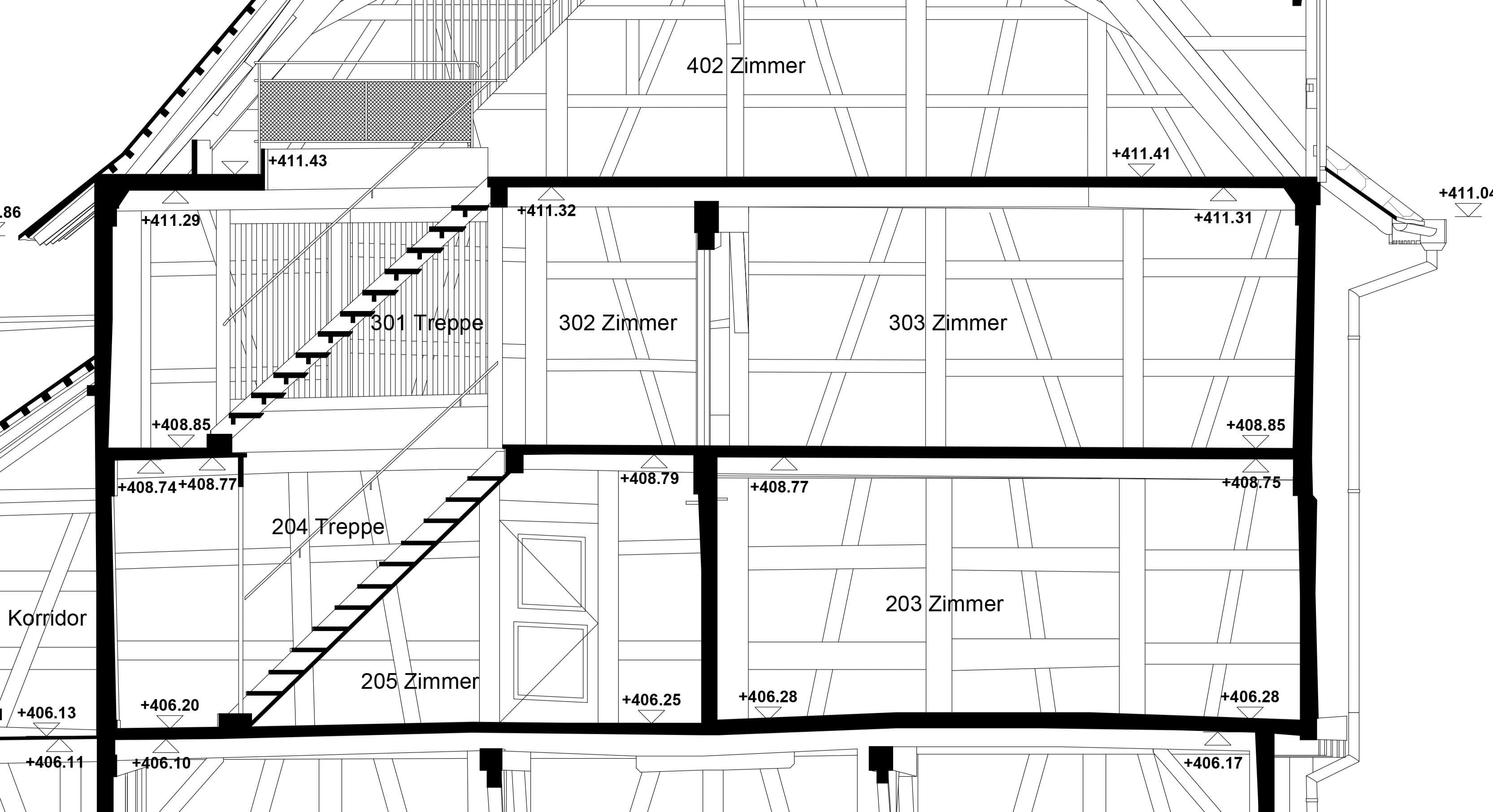
2D-Gebäudeschnitt eines Bestandsgebäudes, abgeleitet aus 3D-Laserscanning für Planung im Bestand durch VDE
2D-Schnitt- und Fassadenpläne generiert aus präzisen 3D-Punktwolkendaten eines Bestandsgebäudes.
Architektur-Grundriss eines länglichen Gebäudes mit mehreren Räumen, Fluren, Treppenbereich und Maßen; schwarz-weißer Plan mit grünen Markierungen und Beschriftungen.
Bestandspläne in 2D abgeleitet aus Laserscanning-Punktwolkendaten als verlässliche Grundlage für Umbauprojekte.
Technischer Grundriss eines Gebäudes mit zwei rechteckigen Hallenbereichen, markierten Räumen, Maßangaben und Beschriftungen; Übersicht der Innenaufteilung und Flächen.
Architektur-Schnittzeichnung eines mehrgeschossigen Gebäudes mit Raumaufteilung, Deckenhöhen und Maßangaben – technischer Bauplan im Querschnitt.
2D-Fassadenplan eines Bestandsgebäudes aus präziser Gebäudevermessung als Grundlage für Sanierungs- und Umbauplanung durch VDE
2D-Fassadenplan eines Bestandsgebäudes aus präziser Gebäudevermessung als Grundlage für Sanierungs- und Umbauplanung durch VDE
2D-Fassadenplan eines Bestandsgebäudes aus präziser Gebäudevermessung als Grundlage für Sanierungs- und Umbauplanung durch VDE

Other References
from this Category

Münsterhof.jpeg
MC-Donalds-Luzern-OV.jpg
Ein modernes Holzhaus mit großem Balkon auf stufigem Untergrund.

Villa Digital
Engineering AG

Tittwiesenstrasse 21
7000 Chur

Alte Landstrasse 248
8708 Männedorf

Zugerstrasse 53
6340 Baar

Neugasse 12
9000 St. Gallen


mail@vde.ch