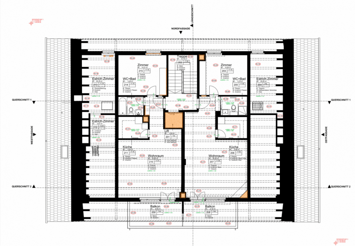
Nachdem bei verschiedenen kleinen Umbauten die Eigentümer Differenzen zu den bestehenden Plänen festgestellt haben, wurde an der STWEG-Versammlung beschlossen das Problem anzugehen. Dazu wurde die VDE beauftrag das Gebäude innen und aussen mittels 3D Laserscanning aufzunehmen und neue, zuverlässige 2D Grundrisse, Ansichten und Schnitte zu erstellen.
Nachdem bei verschiedenen kleinen Umbauten die Eigentümer Differenzen zu den bestehenden Plänen festgestellt haben, wurde an der STWEG-Versammlung beschlossen das Problem anzugehen. Dazu wurde die VDE beauftrag das Gebäude innen und aussen mittels 3D Laserscanning aufzunehmen und neue, zuverlässige 2D Grundrisse, Ansichten und Schnitte zu erstellen.